Kezdőlap
Típusházak
Referenciák
Kapcsolat
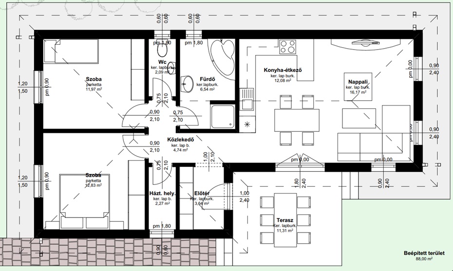
Argentína
Előtér
2 hálószoba
nappali-konyha-étkező
háztartási helység
fürdőszoba
wc
Nettó alapterület: 68 nm.
Bruttó alapterület: 90 nm.
X
Ajánlatkérés
Név:
Email:
Telefonszám:
Tervezett kivitelezés helye:
Háztípus:
Argentína
Üzenet:
Elküldés
Részleteket kérje
emailben