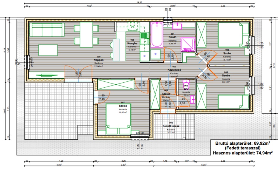
Jolly2